Scan2Plan®
Home About Projects Contact Careers FAQ
Talk to an expert
HomeAboutProjectsContact CareersFAQ
Scan2Plan®
Focus on Design
Talk to an expert

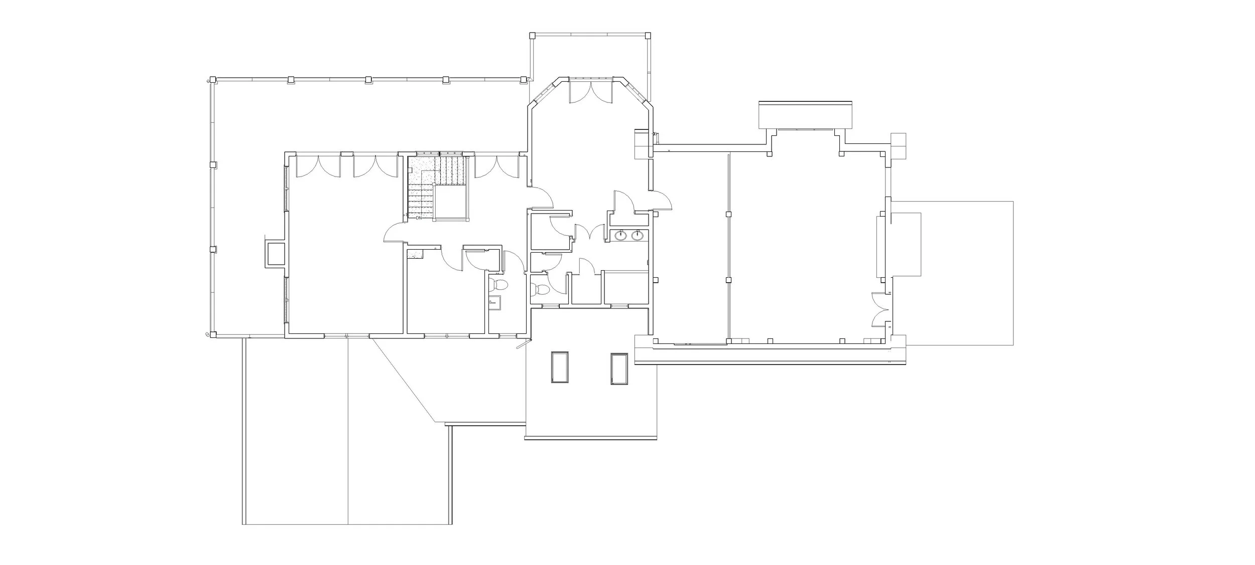
Mt Tremper Residence

Section.jpg
Elevation.jpg
Elevation 2.jpg
Level 1.jpg
Level 2.jpg
Point Cloud Image.jpg
Point Cloud Image 2.jpg
Erkman Residence Registration .jpg
Interior Shot.jpg
Interior wireframe shot.jpg
Revit Model.jpg
Pointcloud with Revit model.jpg
Revit Model 2.jpg
V Owen BushSeptember 22, 2020
Facebook0 Twitter Pinterest0 0 Likes
Previous

Woodland Residence

V Owen BushOctober 12, 2020
Next

Cambridge Firehouse

V Owen BushJuly 28, 2020
 
TALK TO AN EXPERT
 

(518) 362-2403 • 188 1st St, Troy, NY 12180
© Scan2Plan® Inc. 2022

Hudson Reality Capture
189 2nd St,
Troy,
United States
9176530593 v@hudsonrealitycapture.com
Hours
Aboutprojectscontact